秩父市の新築住宅・中古住宅・土地など不動産・建築に関する
ご相談は株式会社大地住建(空間デザイン工房)にお任せ下さい!
新築をお考えの方へ
新築・中古物件情報
土地物件情報
物件リクエスト
家づくりについて
弊社の施工事例
お客様の声
メール会員募集中
売却をお考えの方へ
住宅ローンでお悩みの方へ
生活便利リンク集
会社概要
各種お問合せ
新着情報ブログ
プライバシーポリシー
秩父・不動産大地住建TOP>>
新築・中古物件情報>>
長瀞町 井戸 中古住宅
長瀞町 井戸 中古住宅
築年数も浅く、とにかくキレイで広いお家!!
県道沿いで日当たり良好♪
広々としたリビングから大容量の収納庫までとにかく『
広い
』です。
床暖房、IH、エコキュート完備です。
敷地には菜園も!閑静な住環境をお探しの方は是非!
県道沿いで日当たりは申し分なし、閑静な住環境
駐車スペースの心配はいらないお庭、菜園付き
広々とした玄関、大容量の玄関収納
落ち着いた雰囲気の和室(8畳)
対面キッチンからの広々リビング
玄関側からのリビング
多機能なシステムキッチン、裏には大容量の食納庫も完備
食納庫
広々としたお風呂、脱衣場もゆったり
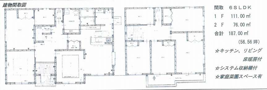
間取り
所在地
埼玉県秩父郡長瀞町大字井戸
交通
秩父鉄道 野上駅より徒歩18分
物件価格
soldout
土地面積
438.49㎡(132.64坪)
建物面積
187.00㎡(56.56坪)
間取
6SLDK
用途地域
都市計画区域外
販売戸数
1
総戸数
1
私道面積
なし
構造
木造2階建て
敷地権利
所有権
駐車場
有
特記事項
設備 プロパン 公営水道 浄化槽 東京電力
取引形態
仲介
ツイート
新築・中古物件情報の一覧に戻る>>